986 Prospect Avenue, Rumford

Dooryard Role

Development Consulting, Modular Dealer, General Contractor, Property Manager

Development Team

Kara Wilbur, Rich Calhoun, Mary Calhoun

Date of Construction

August 2025 - January 2026

L

Building Types

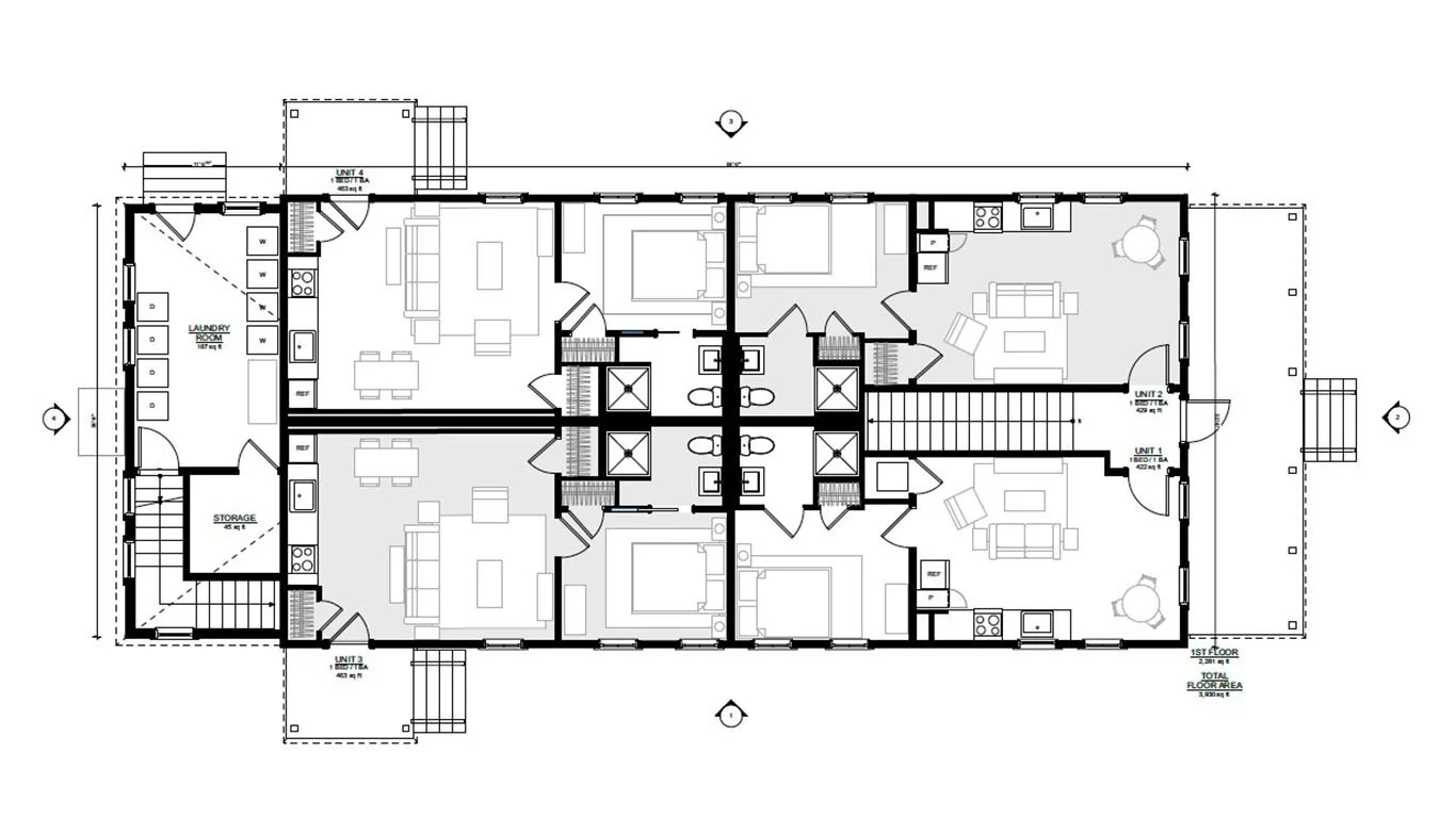
Two 8-unit Town Rent buildings, Duplex

Number of Units

18 units, 1-bedroom

Lot Size

1.51 acres

Density

12 units/acre

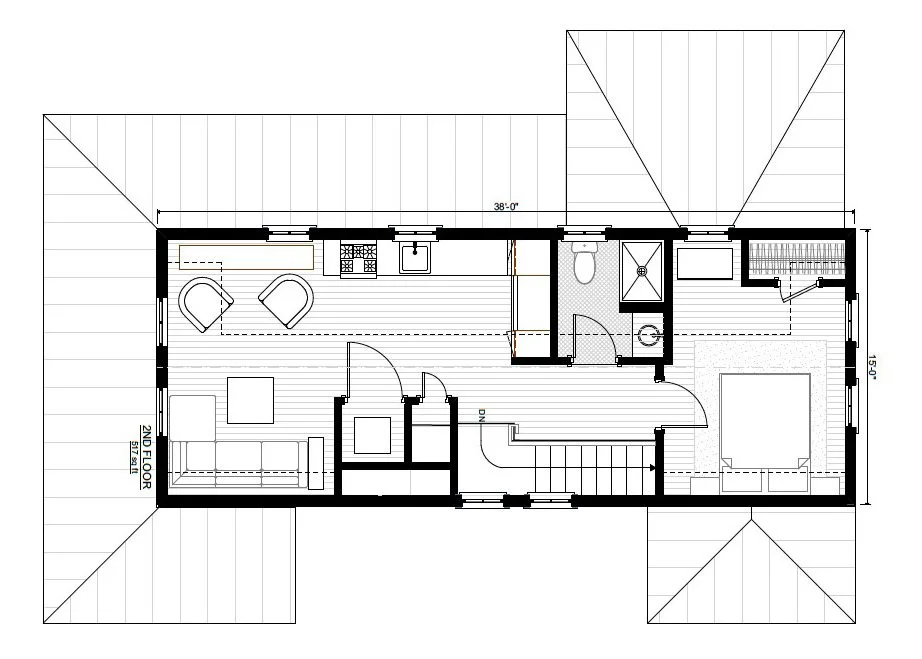
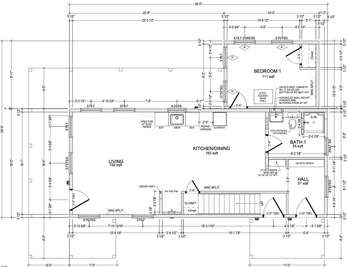
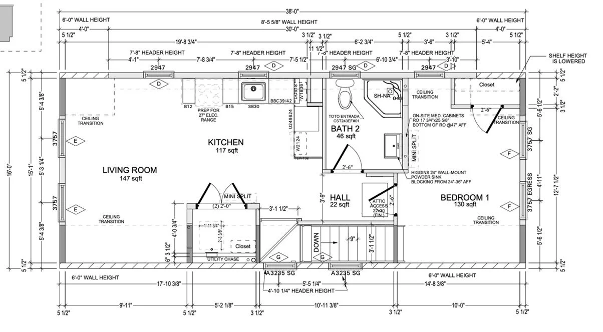
986 Prospect Avenue is located within the Virginia Neighborhood in Rumford. Formerly the site of a vacant and burned down motel, the project has injected new life into this part of Town. Eighteen (18) new units of needed housing will be provided, creating an interesting mix of buildings that face onto the existing street.  The project features two of the Dooryard 8-unit buildings, one with a gable roof and another with a hip roof, as well as a duplex. The project has worked to demonstrate how it is possible through careful design to build density that is considered to be attractive to the local community.   

Construction started in June of 2025 and the project will be completed in January 2026.

Project Team

Conceptual Site and Building Design: Dooryard | Architecture: Woodhull | Engineering: Haley Ward | Structural: Foley Buhl Roberts | Geotechnical Consultant: Summit Geotechnical Services | Concrete: Tri-Stone Industries

Modular Dealer: Dooryard | Modular Manufacturing: KBS Builders | Crane: Keeley Crane Service

Heat Pumps: On the Rise Heat Pumps | Solar: ReVision Energy | Sprinklers: High Tech Fire Protection | Access Control: Open Iot Group | Appliances: Agrens | Painting: Orion Property Professionals | Plumbing: Community Energy | Keeley Electric | Holgerson Roofing | Merchant Floor Finishing | Town of Rumford

Property Management: Dooryard, LLC

986 Prospect Avenue, Rumford

Interested in more information?
Get in touch with our team for more information.