6-Unit Town Rent

$0.00

The town rent… how Maine towns and villages were built.

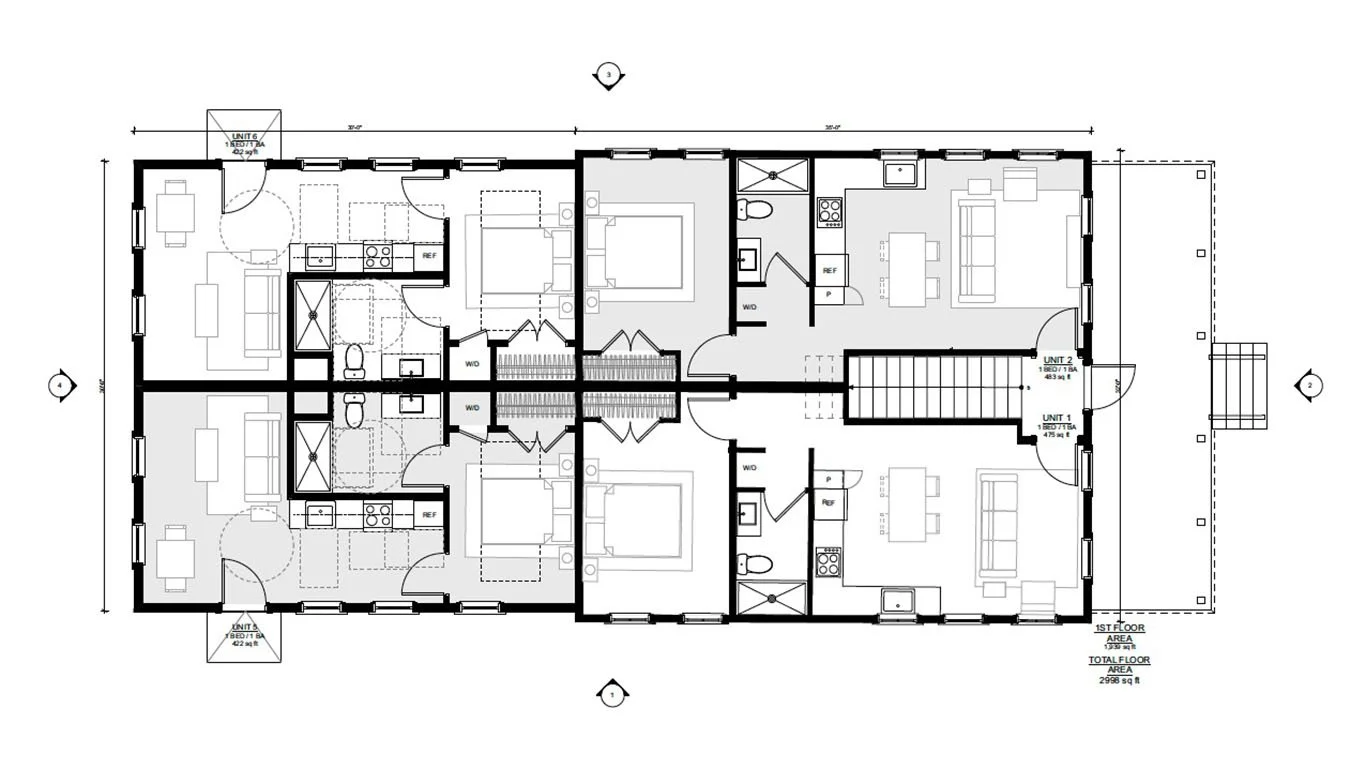
A small apartment house designed to fit onto standard lots in Maine villages and traditional neighborhoods, something our grandparents might have referred to as a “town rent” . This building is efficient and carefully designed to provide comfortable, affordable places to live, for people just starting out and those looking to downsize. This building is fully engineered and ready to order. Contact us to get full pricing, including modular boxes and all on-site construction.

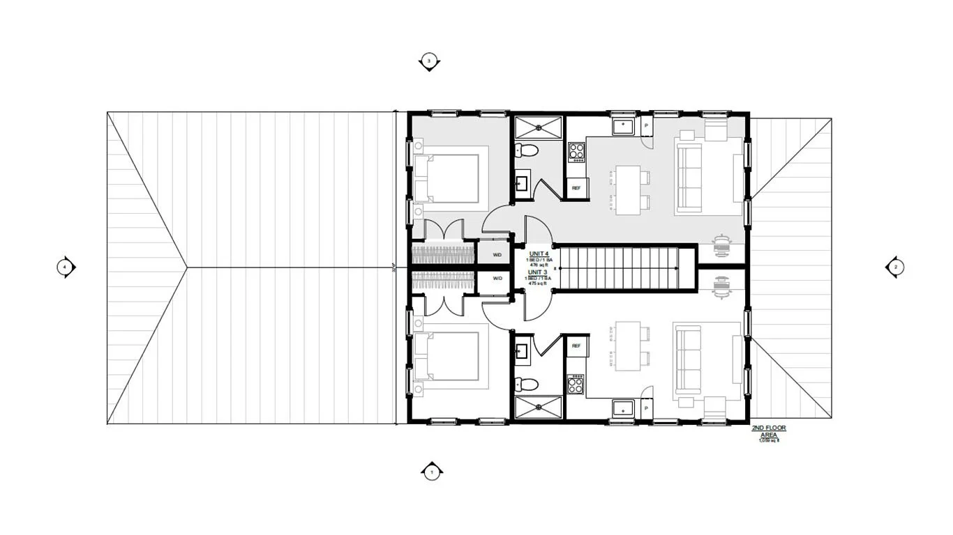
Building includes six 1-bedroom / 1 bath units. Four units are accessed from a common stairwell off the front porch and two units have private entries accessed from stoops located at the rear of the building.

Available Modifications:

  • The length of this building can be increased to provide additional living space.

  • Gable roof available.

The town rent… how Maine towns and villages were built.

A small apartment house designed to fit onto standard lots in Maine villages and traditional neighborhoods, something our grandparents might have referred to as a “town rent” . This building is efficient and carefully designed to provide comfortable, affordable places to live, for people just starting out and those looking to downsize. This building is fully engineered and ready to order. Contact us to get full pricing, including modular boxes and all on-site construction.

Building includes six 1-bedroom / 1 bath units. Four units are accessed from a common stairwell off the front porch and two units have private entries accessed from stoops located at the rear of the building.

Available Modifications:

  • The length of this building can be increased to provide additional living space.

  • Gable roof available.