Flip through the Catalogue.

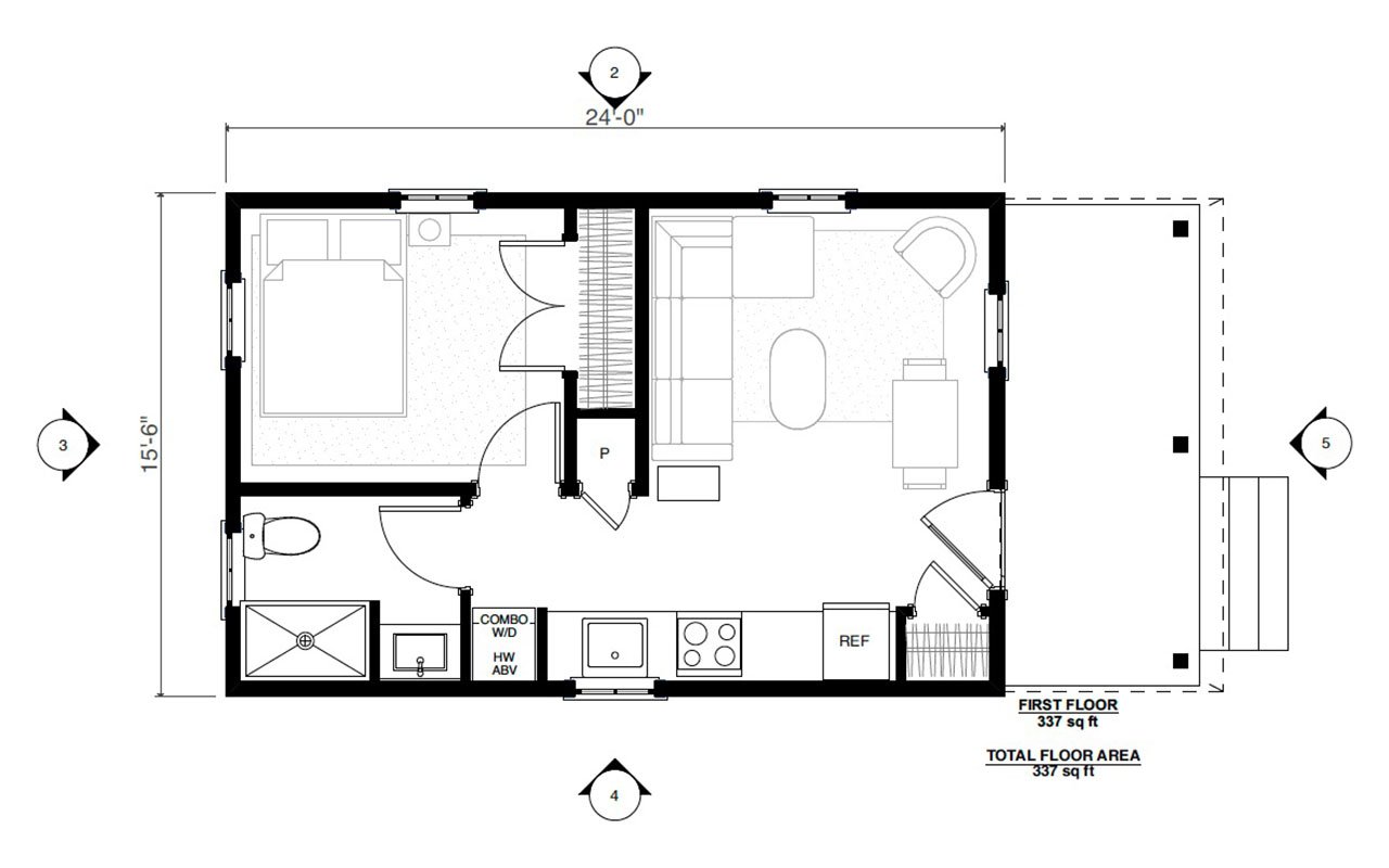
337

Filters

No results found

No results match your search. Try removing a few filters.

Dooryard is a catalog home company, proudly serving Maine and New England.

  • Dooryard offers a set of standard specifications that include timeless, durable finishes that help make a place home. These finishes can be adjusted to reduce costs and meet financing needs.  Like stick built, there are changes that can be made easily, and others that have larger financial implications.  We can help walk you through the decision making process. 

    Standard Selections (choices impact pricing):

    • Architectural shingles or standing seam metal roof

    • Insulation thickness 1.5” - 2.5” Zip-R

    • Full basement, partial basement, or crawl space

    • Bulkhead or trap door

    • Porches or stoops

    • Wood clapboard, LP SmartSide, or vinyl siding

    • Wood or PVC trim 

    • Exterior paint color

    • Flooring material and color

    • Exterior and interior door hardware

    • Cabinet style, color, and pulls

    • Countertop material

    • Hardware and fixtures (polished nickel or brass)

    • Fiberglass or tile shower

    • Plumbing fixtures

    • Bathroom sink or vanity

    • Appliance size and brand

    • Stone dust or asphalt driveways / walkways

    • Keyed or keyless door entry

  • Dooryard works with clients to select the right existing modular design, or to create a custom modular design that works for project needs.  For projects that include buildings from our existing catalog, total project duration from signing of production contracts through Certificate of Occupancy can be anywhere from 2 to 7 months, depending on the size of the project.  Please call our sales team for details on schedule and payment structure.